Neubau
Eine Auswahl von Referenzobjekten
Auf Anfrage stellen wir Ihnen gerne die vollständigen Bauherrendaten und weitere Referenzobjekte zur Verfügung.
Anbau Studio Buchfeldterrasse Buchrain, 2021
Klein aber fein, kommt der modern integrierte Holzbau unter der vormaligen Sitzplatzüberdachung daher. Das Studio mit Nassbereich ermöglicht den heranwachsenden Kindern mehr Privatsphäre im eigenen Elternhaus. Zukunftsorientiert konzipiert, funktioniert die Einheit auch als vermietbare Kleinwohnung oder Büro. Zeitgleich wurden am bestehenden EFH diverse Sitzplätze, Überdachungen und Sichtschutzvorrichtungen realisiert.
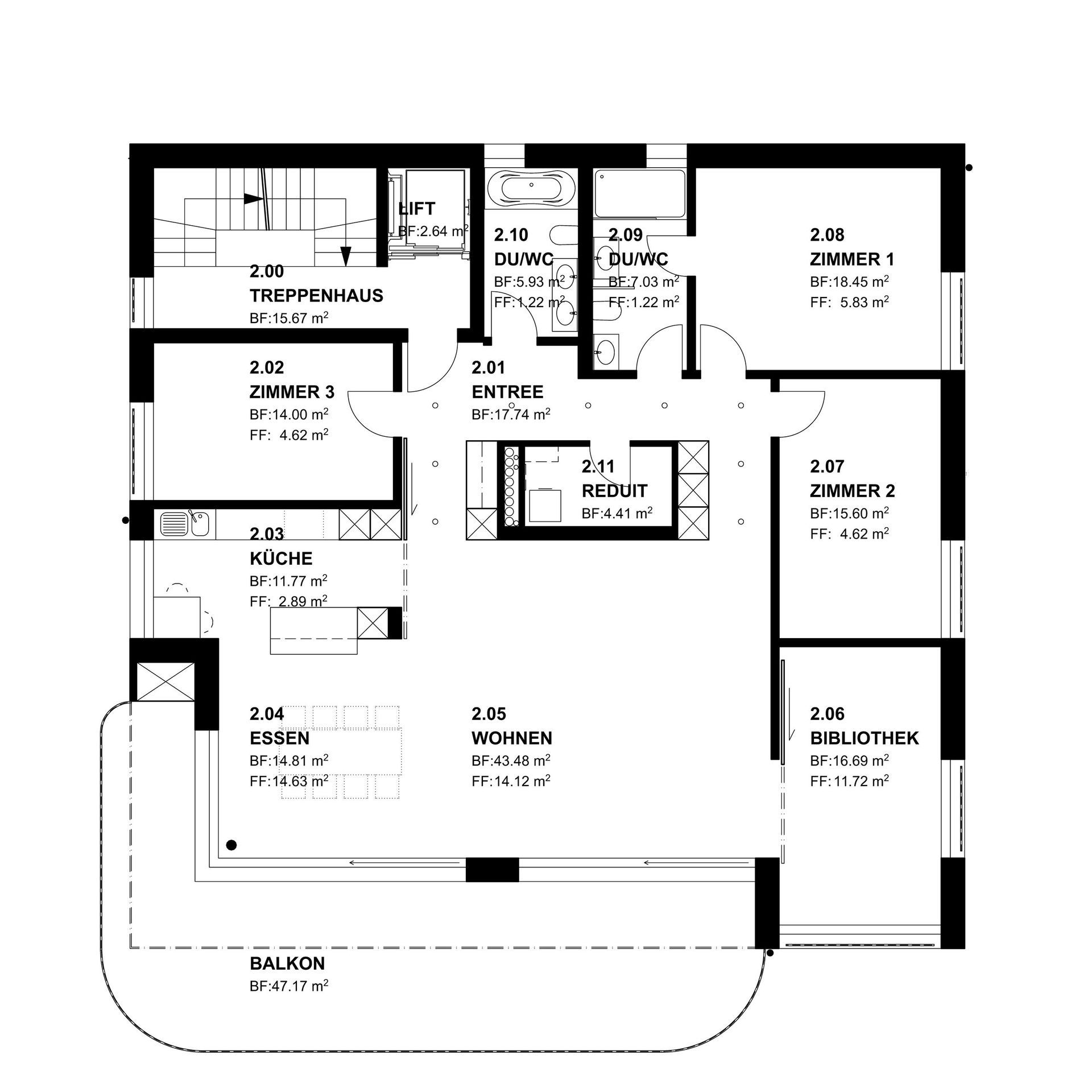
Neubau MFH Bellerivestrasse Luzern 2020/22
Ein gehobenes Ersatzneubauprojekt mit Einstellhalle an bevorzugter Lage.
Beim dritten Bauvorhaben, bei welchem wir das Vertrauen dieser tollen Bauherrschaft geniessen dürfen, wird das bestehende 2-Familienhaus durch ein MFH mit 4 Stockwerkswohnungen ersetzt. Das Projekt überzeugt, durch strukturell klar durchdachte, grosszügige, aber nicht überdimensionierte Wohnungen, mit grosszügigen Aussenflächen. Zeitgemässe und umweltfreundliche Hausinstallationen, sowie ein hochwertiges Einsteinmauerwerk und ein Mansardendach runden das Objekt ab. Dem bauzonenkonformen Projekt, stehen zur Zeit leider noch zivilrechtliche Interessen entgegen.
Neubau MFH Mettenwylstrasse Luzern, 2013/14
Trotz äusserst anspruchsvollen Rahmenbedingungen bezüglich angrenzender Bauten und Unter-Terrain-Nutzung führte das Bauleitungsmandat zu einem tollen Ensemble zwischen alten Stadtvillen und moderner Architektur – mit einer atemberaubenden und luxuriösen Attikawohnung mit grosser Terrasse und darunterliegenden Mietwohnungen.
Neubau EFH Horwerstrasse Luzern, 2012
In Zusammenarbeit mit den ro.ma.-Architekten entstand ein kubisches, lichtdurchflutetes Zwei-Personen-EFH. Nach vorgängigem Abbruch an ein direkt verbundenes Nachbargebäude erforderte der Baugrund Spundwände und Pfählungen. Hochwertige Materialien veredeln den Innenausbau.
Neubau EFH Im Grünen Neuenkirch, 2010/11
Grosszügige Räume sind eines der Merkmale dieses Zwei-Personen-Einfamilienhauses. Der grosse Garagenbereich wurde in Form eines Holzbaus in die sonst massive Fassade integriert. Schöne Details in Form von Sichtbetontreppe mit Glasgeländer, hochwertiger Küche, Cheminéeofen, Bad mit grosszügiger Wanne und Regendusche oder punktuelle Fensterausrichtungen runden das Objekt ab.
Neubau EFH Buchfeldstrasse Buchrain, 2006
Mit dem Bresta Holzbausystem wurde bewusst eine ökologisch fortschrittliche Bauweise umgesetzt. Ausser dem teilweise im Erdreich liegenden Untergeschoss sind sämtliche Böden, Wände und Decken aus Holz. Das Innenklima ist hervorragend. Mit der augenfälligen Auskragung des Obergeschosses, den klaren Formen und der roten Fassadenfarbe setzt das EFH noch heute ein Ausrufezeichen.


































